Baugebiet Dorum – Südlich Knakenburg
ca. 50 Bauplätze (Ein- und Mehrfamilienhäuser)
Dorum ist ein Ort der Gemeinde Wurster Nordseeküste im Landkreis Cuxhaven. Die niedersächsische Ortschaft mit 3.588 Einwohnern (Stand 2017) liegt im nördlichen Bereich von Weser und Elbe. Das älteste Bauwerk des Ortes ist die um 1200 erbaute St. Urbanus-Kirche. In der Größe und Ausstattung der Kirche spiegelt sich der damalige Wohlstand der Wurster Schiffer und Bauern wider.
Die Ortschaft Dorum ist wirtschaftlich überwiegend durch mittelständische Unternehmen geprägt, ferner ist der Tourismussektor von größerer Bedeutung. So tragen die vielen Restaurants, Hotels, Ferienwohnungen und Campingplätze (in Dorum-Neufeld) insbesondere in den Sommermonaten zur positiven wirtschaftlichen Entwicklung bei.
Dorum ist verkehrstechnisch gut erschlossen. Über den im Ort gelegenen Bahnhof ist eine Anbindung an die Strecke Cuxhaven – Bremerhaven/Bremen gegeben. Zum anderen befindet sich nur wenige Minuten vom Ort entfernt eine Auffahrt zur Autobahn A27 in Richtung Cuxhaven bzw. Bremerhaven (Bremen). Cuxhaven und Bremerhaven sind in ca. 20 Minuten mit dem Auto zu erreichen.
Die Ortschaft Dorum ist als Wirtschaftsstandort für die Region unerlässlich. Hier finden sich neben diversen Einkaufsmöglichkeiten, Gastronomie, Schulen und Kindertagesstätten auch ein Rathaus. Dorum hat zwei Kindertagesstätten (die Kita „Strandpiraten“ und die ev.-luth. Kita „Am Wattenmeer“) sowie die Deichgraf Johans Grundschule zu bieten. Außerdem ist die Oberschule „Achtern Diek“ als Ganztagsschule mit gymnasialem Zweig fußläufig vom Baugebiet zu erreichen.
Insbesondere im Zentrum sind gute Einkaufsmöglichkeiten für den täglichen Bedarf gegeben. Neben den vorhandenen größeren Märkten finden Sie auch eine Vielzahl kleinerer Geschäfte sowie eine Postfiliale, die Polizei und zwei Banken. Dorum zeichnet sich ebenfalls durch ein umfangreiches Vereinsangebot aus.
Die medizinische Grundversorgung ist mit mehreren ortsansässigen Ärzten und Zahnärzten gewährleistet. Des Weiteren befinden sich eine Apotheke und ein vom DRK betriebenes Senioren-Pflegeheim in Dorum.
Mit der Hafenanlage im 6,5 km vom Hauptort entfernten Dorum-Neufeld besitzt die Ortschaft einen maritimen Zugang zur Deutschen Bucht und dem westlich angrenzenden Nationalpark Niedersächsisches Wattenmeer. Zudem gibt es dort einen Badestrand, das beheizte Schwefelsole-Wellenfreibad „Watt’n Bad“ und den sehenswerten Leuchtturm Obereversand.
Aktueller Hinweis:
Die Erschließungsarbeiten im Baugebiet sind abgeschlossen und die Baufreigabe erteilt. Der Weg ist frei für die private Bebauung.
Die Nachfrage nach Baugrundstücken im Baugebiet Dorum ist sehr hoch, sodass nur noch vereinzelnd Grundstücke zur Verfügung stehen. Grundstücke können unter Umständen durch Rücktritte wieder frei werden. Bei Interesse nehmen wir Sie auch gerne auf die Warteliste für die bereits reservierten Grundstücke auf.
Übersicht
Um eine datensparsame Verarbeitung zu gewährleisten, zeigen wir Ihnen hier lediglich ein Vorschaubild an. Wenn Sie die Karte sehen möchten, akzeptieren Sie bitte die Cookies „Externe Medien“ über unser Cookiebanner. Weitere Informationen erhalten Sie in unserer Datenschutzerklärung.
Übersicht
Das Baugebiet
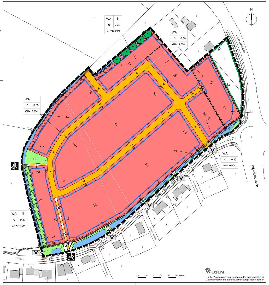
Bebauungsplan und Anlagen
- 6-b-plan-nr-51-suedlich-knakenbu.pdf (805,6 KiB)
- 7-1-planzeichnung-b-plan-nr-51.jpg (234,4 KiB)
- 7-2-planzeichenerklaerung.jpg (111,4 KiB)
- 8-textl-festsetzungen.jpg (153,7 KiB)
- 9-oertliche-bauvorschriften.jpg (73,2 KiB)
- 10-nachrichtliche-uebernahmen.jpg (160,1 KiB)
- 11-begruendung-b-plan-nr-51.pdf (968,6 KiB)
- 12-bodenprobe.pdf (1,1 MiB)
- 13-1-luftbildauswertung.pdf (514,8 KiB)
- 13-2-luftbildauswertung.pdf (262,2 KiB)
Impressionen aus dem Baugebiet
- 1freies-feld.jpg (419,1 KiB)
- 2weite-flaeche.jpg (529,9 KiB)
- 3im-gruenen.jpg (496,0 KiB)
- 4die-arbeiten-beginnen.jpg (511,6 KiB)
- 5es-geht-voran.jpg (462,4 KiB)
- 6blick-durch-s-rohr.jpg (269,4 KiB)
- 7strassenbau.jpg (1,8 MiB)
- 8die-strassenlaternen-stehen.jpg (1,4 MiB)
- 9winterlicher-sonnenuntergang.jpg (1,6 MiB)