Baugebiet Bremervörde "Alter Kirchweg Nord II"
ca. 40 Bauplätze (Ein- und Mehrfamilienhäuser)
Die Stadt Bremervörde im Norden des Landkreises Rotenburg (Wümme), liegt direkt an der Oste.
Die niedersächsische Stadt im Elbe-Weser-Dreieck zwischen Bremen und Hamburg umfasst 18.576 Einwohner (Stand 2023). Sie besteht aus der Kernstadt und elf eingemeindeten Ortschaften. Bremervörde verfügt über ein gut ausgebautes Verkehrsnetz, das sowohl Bus- wie auch Bahnverbindungen bietet. Die Anschlussstellen der Autobahnen A1 und A27 sind in ca. 30-40 min über die Bundestraßen zu erreichen.
Bremervörde ist ein staatlich anerkannter Erholungsort, der viele Möglichkeiten bietet, die schöne Natur und Umgebung zu erkunden. Ob auf Wanderwegen, mit dem Rad oder paddelnd auf der Oste - Naturliebhaber finden Erholung und Abenteuer direkt vor der Haustür. Außerdem bieten eine Vielzahl von Sportstätten, kulturelle Einrichtungen, regelmäßige Veranstaltungen sowie ein Erlebnisbad Unterhaltung und Abwechslung. Am Oste-Hafen kommt maritimes Flair auf. In der belebten Innenstadt findet man umfangreiche Einkaufmöglichkeiten und Gastronomiebetriebe.
Alles für den Alltag - direkt vor der Tür. Einkaufsmöglichkeiten vom Supermarkt bis zum Fachgeschäft, Ärzte vieler Fachrichtungen, Apotheken und ein modernes Krankenhaus - in Bremervörde sind Sie rundum versorgt. Das Bildungs- und Betreuungsangebot ist umfassend: Kindertagesstätten und Grundschulen, weiterbildende Schulen in vielen Schulformen sowie berufsbildende Schulen machen Bremervörde besonders attraktiv für Familien.
Aktueller Hinweis:
Nach Verzögerungen bei den Erschließungsarbeiten, hoffen wir nun auf einen reibungslosen Verlauf.
Sobald die Quadratmeterpreise endgültig kalkuliert werden können, starten wir mit der Vermarktung der Grundstücke. Es werden dann die Interessenten in chronologischer Reihenfolge der Interessentenliste kontaktiert.
Weitere Kaufinteressenten nehmen wir gerne auf die Interessentenliste auf.
Zusätzliche Unterlagen und Informationen zum Baugebiet folgen demnächst.
Übersicht (Kopie)
Um eine datensparsame Verarbeitung zu gewährleisten, zeigen wir Ihnen hier lediglich ein Vorschaubild an. Wenn Sie die Karte sehen möchten, akzeptieren Sie bitte die Cookies „Externe Medien“ über unser Cookiebanner. Weitere Informationen erhalten Sie in unserer Datenschutzerklärung.
Übersicht (Kopie)
Das Baugebiet
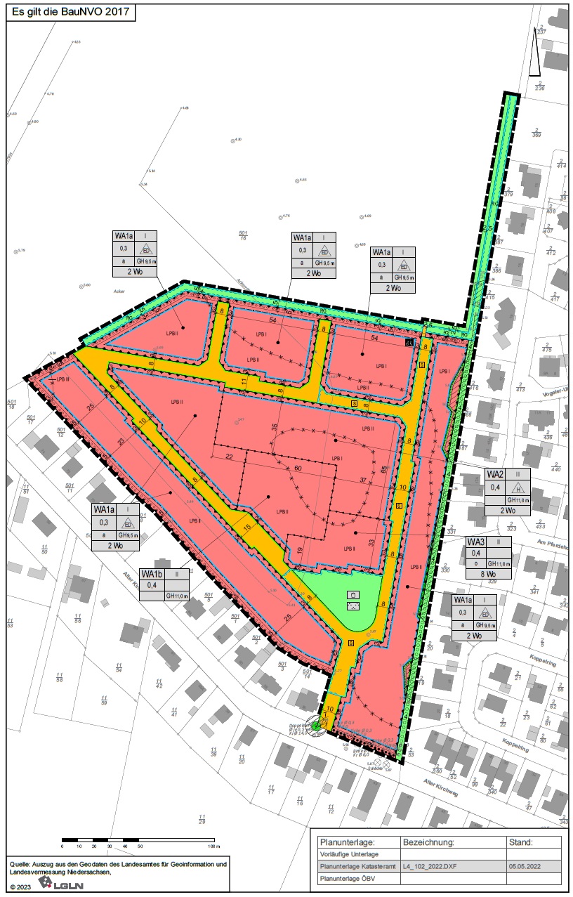
Bebauungsplan und Anlagen
- 7-b-plan-nr-129-bremervoerde.pdf (6,0 MiB)
- 8-1-planzeichnung.jpg (349,4 KiB)
- 8-2-planzeichenerklaerung.jpg (209,2 KiB)
- 9-textliche-festsetzungen.jpg (361,2 KiB)
- 10-oertliche-bauvorschriften.jpg (91,5 KiB)
- 11-hinweise-zum-b-plan.jpg (244,9 KiB)
- 12-schalltechnisches-gutachten.pdf (1,1 MiB)
- 13-1-bodengutachten-2025.pdf (3,6 MiB)
- 13-2-bodengutachten-2022.pdf (9,2 MiB)
- 14-auswertung-kampfmittel.pdf (3,1 MiB)
- 15-verkehrsuntersuchung.pdf (6,5 MiB)
Impressionen aus dem Baugebiet
- alter-kirchweg.jpg (1,7 MiB)
- arbeiten-baustrasse.jpg (538,8 KiB)
- blick-in-noerdl-richtung.jpg (838,6 KiB)
- blick-in-oestl-richtung.jpg (1,2 MiB)
- blick-ins-baugebiet.jpg (982,3 KiB)
- erschliessungsarbeiten-3.jpg (1,0 MiB)
- erschliessungsarbeiten.jpg (1,4 MiB)
- erschliessungsarbeiten2.jpg (1,4 MiB)
- luftaufnahme-1.jpg (568,5 KiB)
- luftaufnahme-2.jpg (547,5 KiB)
- zufahrt-zum-baugebiet.jpg (744,2 KiB)